設計與制造 | 結構長度 | 法蘭連接 |
GB12239 | GB12221、JB1688 | GB4216、JB78 |
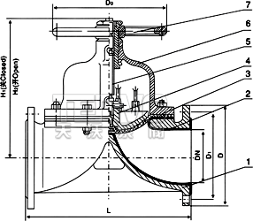
序號 | 名稱 |
1 | 閥體 |
2 | 閥體襯里 |
3 | 隔膜 |
4 | 閥瓣 |
5 | 閥桿 |
6 | 閥蓋 |
7 | 手輪 |
公稱通徑 DN(mm) |
公稱壓力 PN(MPa) |
工作壓力 PN(MPa) |
L | D | D1 | n-d | f | H1 | H2 | D0 |
15 | 1.0 | 1.0 | 125 | 95 | 65 | 4-14 | 2 | 105 | 116 | 120 |
20 | 135 | 105 | 75 | 4-14 | 2 | 117 | 128 | 120 | ||
25 | 145 | 115 | 85 | 4-14 | 2 | 121 | 135 | 120 | ||
32 | 160 | 140 | 100 | 4-18 | 2 | 132 | 150 | 120 | ||
40 | 180 | 150 | 110 | 4-18 | 3 | 156 | 176 | 140 | ||
50 | 210 | 165 | 125 | 4-18 | 3 | 169 | 195 | 140 | ||
65 | 250 | 185 | 145 | 4-18 | 3 | 200 | 236 | 200 | ||
80 | 300 | 200 | 160 | 4-18 | 3 | 216 | 256 | 200 | ||
100 | 350 | 220 | 180 | 8-18 | 3 | 270 | 322 | 280 | ||
125 | 400 | 250 | 210 | 8-18 | 3 | 315 | 380 | 320 | ||
150 | 460 | 285 | 240 | 8-22 | 3 | 378 | 480 | 320 | ||
200 | 0.6 | 0.4 | 570 | 340 | 295 | 8-22 | 4 | 518 | 638 | 400 |
250 | 680 | 395 | 350 | 12-22 | 4 | 583 | 720 | 500 | ||
300 | 790 | 445 | 400 | 12-22 | 4 | 698 | 778 | 500 | ||
350 | 900 | 505 | 460 | 16-22 | 4 | 723 | 883 | 500 | ||
400 | 0.25 | 1000 | 565 | 515 | 16-22 | 4 | 868 | 1078 | 640 |
序號 | 名稱 |
1 | 閥體 |
2 | 閥體襯里 |
3 | 隔膜 |
4 | 閥瓣 |
5 | 下閥桿 |
6 | 閥蓋 |
7 | 氣缸 |
8 | 活塞 |
9 | 彈簧 |
10 | 氣缸蓋 |
11 | 上閥桿 |
12 | 手輪 |
公稱通徑 (DN) |
公稱壓力 (MPa) |
工作壓力 (MPa) |
L | D | D1 | n-d | f | H1 | H2 | D0 | B | 氣源壓力 (MPa) |
氣源接頭 in |
15 | 0.6 | 0.6 | 125 | 95 | 65 | 4-14 | 2 | - | - | - | - | - | - |
20 | 139 | 105 | 75 | 4-14 | 2 | - | - | - | - | - | - | ||
25 | 145 | 115 | 85 | 4-14 | 2 | 296 | 310 | 120 | 94 | 0.4 | 10×1 | ||
32 | 160 | 140 | 100 | 4-18 | 2 | 398 | 416 | 140 | 120 | 0.4 | 12×1.25 | ||
40 | 180 | 150 | 110 | 4-18 | 3 | 406 | 426 | 140 | 120 | 0.4 | 12×1.25 | ||
50 | 210 | 165 | 125 | 4-18 | 3 | 464 | 489 | 160 | 185 | 0.4 | 12×1.25 | ||
65 | 250 | 185 | 145 | 4-18 | 3 | - | - | 160 | - | 0.5 | - | ||
80 | 300 | 200 | 160 | 4-18 | 3 | 645 | 685 | 200 | 245 | 0.5 | 16×1.5 | ||
100 | 350 | 220 | 180 | 8-18 | 3 | 710 | 760 | 240 | 330 | 0.5 | 16×1.5 | ||
125 | 400 | 250 | 210 | 8-18 | 3 | 832 | 900 | 320 | 380 | 0.5 | 20×1.5 | ||
150 | 460 | 285 | 240 | 8-22 | 3 | 933 | 1013 | 320 | 470 | 0.5 | 20×1.5 | ||
200 | 0.4 | 570 | 340 | 295 | 8-22 | 4 | 1275 | 1395 | 400 | 470 | 0.5 | 20×1.5 | |
250 | 680 | 395 | 350 | 12-22 | 4 | - | - | - | - | - | - |
序號 | 名稱 |
1 | 閥體 |
2 | 閥體襯里 |
3 | 隔膜 |
4 | 閥瓣 |
5 | 下閥桿 |
6 | 閥蓋 |
7 | 氣缸 |
8 | 活塞 |
9 | 彈簧 |
10 | 氣缸蓋 |
11 | 上閥桿 |
12 | 手輪 |
公稱通徑 (DN) |
公稱壓力 (MPa) |
工作壓力 (MPa) |
L | D | D1 | n-d | f | H1 | H2 | D0 | B | 氣源壓力 (MPa) |
氣源接頭 in |
15 | 0.6 | 0.6 | 125 | 95 | 65 | 4-14 | 2 | - | - | - | - | - | - |
20 | 139 | 105 | 75 | 4-14 | 2 | - | - | - | - | - | - | ||
25 | 145 | 115 | 85 | 4-14 | 2 | 306 | 320 | 120 | 94 | 0.4 | 10×1 | ||
32 | 160 | 140 | 100 | 4-18 | 2 | 410 | 430 | 140 | 120 | 0.4 | 12×1.25 | ||
40 | 180 | 150 | 110 | 4-18 | 3 | 415 | 435 | 140 | 120 | 0.4 | 12×1.25 | ||
50 | 210 | 165 | 125 | 4-18 | 3 | 463 | 488 | 160 | 185 | 0.4 | 12×1.25 | ||
65 | 250 | 185 | 145 | 4-18 | 3 | 620 | 660 | 160 | 245 | 0.5 | 16×1.5 | ||
80 | 300 | 200 | 160 | 4-18 | 3 | 627 | 667 | 200 | 245 | 0.5 | 16×1.5 | ||
100 | 350 | 220 | 180 | 8-18 | 3 | 719 | 769 | 240 | 330 | 0.5 | 16×1.5 | ||
125 | 400 | 250 | 210 | 8-18 | 3 | 804 | 872 | 320 | 380 | 0.5 | 20×1.5 | ||
150 | 460 | 285 | 240 | 8-22 | 3 | 920 | 1000 | 320 | 470 | 0.5 | 20×1.5 | ||
200 | 0.4 | 570 | 340 | 295 | 8-22 | 4 | 1145 | 1265 | 400 | 470 | 0.5 | 20×1.5 | |
250 | 680 | 395 | 350 | 12-22 | 4 | - | - | - | - | - | - |
序號 | 名稱 |
1 | 閥體 |
2 | 閥體襯里 |
3 | 隔膜 |
4 | 閥瓣 |
5 | 下閥桿 |
6 | 閥蓋 |
7 | 氣缸 |
8 | 活塞 |
9 | 氣缸蓋 |
10 | 上閥桿 |
11 | 手輪 |
公稱通徑 (DN) |
公稱壓力 (MPa) |
工作壓力 (MPa) |
L | D | D1 | n-d | f | H1 | H2 | D0 | B | 氣源壓力 (MPa) |
氣源接頭 in |
15 | 0.6 | 0.6 | 125 | 95 | 65 | 4-14 | 2 | - | - | - | - | - | - |
20 | 139 | 105 | 75 | 4-14 | 2 | - | - | - | - | - | - | ||
25 | 145 | 115 | 85 | 4-14 | 2 | 250 | 264 | 120 | 94 | 0.4 | 10×1 | ||
32 | 160 | 140 | 100 | 4-18 | 2 | 302 | 328 | 140 | 120 | 0.4 | 12×1.25 | ||
40 | 180 | 150 | 110 | 4-18 | 3 | 306 | 328 | 140 | 120 | 0.4 | 12×1.25 | ||
50 | 210 | 165 | 125 | 4-18 | 3 | 379 | 405 | 160 | 185 | 0.4 | 12×1.25 | ||
65 | 250 | 185 | 145 | 4-18 | 3 | 467 | 502 | 240 | 245 | 0.4 | 16×1.5 | ||
80 | 300 | 200 | 160 | 4-18 | 3 | 483 | 523 | 240 | 245 | 0.5 | 16×1.5 | ||
100 | 350 | 220 | 180 | 8-18 | 3 | 565 | 617 | 280 | 330 | 0.5 | 16×1.5 | ||
125 | 400 | 250 | 210 | 8-18 | 3 | 664 | 732 | 320 | 380 | 0.5 | 20×1.5 | ||
150 | 460 | 285 | 240 | 8-22 | 3 | 750 | 830 | 320 | 470 | 0.5 | 20×1.5 | ||
200 | 0.4 | 570 | 340 | 295 | 8-22 | 4 | 930 | 1050 | 400 | 470 | 0.5 | 20×1.5 | |
250 | 680 | 395 | 350 | 12-22 | 4 | - | - | - | - | - | - |
閥體襯里 | 適用介質 |
軟橡膠 | 有很好的耐腐性能,可用于水泥、粘土、煤塵、干燥化肥 |
硬橡膠 | 適用于無機堿、鹽類、鹽酸、鍍金屬溶液、軟水、氯化物、氯氣等 |
氯橡膠 | 適用于動物油、植物油、潤滑脂、對于PH值變化范圍很大的腐蝕性泥漿、抗摩損性能良好 |
丁基膠 | 防腐性和耐磨性良好,對大部分無機酸和酸性灰漿的耐蝕性最好 |
標準的堰式隔膜閥可以使用于真空中,不過高真空隔膜必須特殊增強。